ads/responsive2.txt

Deer Blind Dimensions

A standard two person ground blind is going to have approximately a 60 x 60 shooting width and anywhere from a 54 to 64 standing height similar to the big game quantum ground blind.

Deer blind dimensions. Deer blind tower brackets is a revolutionary bracket that will change the way you think about elevating your hunting blind. Of these an estimated 9 47 million use some kind of deer blind such as best ground blind or elevated deer blind when hunting deer. The first step of the project is to build the floor frame for the 2 person deer blind.

So my beginning point was two 4x4 runners. First i had to decide if i wanted an elevated blind or one close to the ground. The specific size of the grand stand deer blind is the result of building many box stands and making improvements along the way.

Drill pilot holes through the rim joists and insert 2 1 2 screws into the perpendicular components. There is a specific box stand size which is shown in this book that makes it possible to hunt effectively with a partner and not be overcrowded or you can hunt effectively alone if you prefer and the grand stand is the most economical to build. Diy box blind for deer hunting from the outdoor texan.

The outdoor texan has this free 4x8 deer blind plan on a single page with several images to follow along with. I am wanting to build something i can both bow and rifle hunt out of comfortably. The floor size should be adequate to accommodate a foldable chair and the hunter s gear allowing at least an 180 to a 270 degree view.

The e z tower deer stand brackets are of a heavy gauge steel bracket that quickly easily attaches to the corners of a hunting blind with basic lag screws or bolts. I am in the process of building a new stand to set up next season. This deer blind may take around 10 hours to complete and is estimated to cost around 300.

How to build a deer blind diy deer blind step by step based on statistics there are over 11 million whitetail deer hunters in north america. Make sure the edges are flush and check the corners for squareness. Knowing where this blind was going to be placed i opted for the close to the ground version.

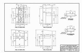
As you can see in the plans you need to use 2 4 or 2 6 beams for the components.

Source : pinterest.com